当前位置:
整木网>
整木新闻>
厂商专栏>
详情
手机版最新留言:
使用手机微信“扫一扫”功能,扫描以下二维码,即可将本文分享到“朋友圈”中。
2024-06-30 编辑:中国整木网 来源:网络 浏览数:6621
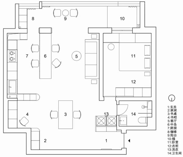
本次案例设计师将客厅、餐厅、厨房及阳台整合为一个大空间,并在空间最核心的位置设置一个中岛,从而达到起居空间各项功能围绕中岛吧台展开,中岛成为空间中不同功能之间的桥,是各个空间的联系纽带,连结客厅、餐厅、厨房、阳台及工作区。

本次案例设计师将客厅、餐厅、厨房及阳台整合为一个大空间,并在空间最核心的位置设置一个中岛,从而达到起居空间各项功能围绕中岛吧台展开,中岛成为空间中不同功能之间的桥,是各个空间的联系纽带,连结客厅、餐厅、厨房、阳台及工作区。

将入户换鞋、挂衣的收纳柜体和烘洗机背靠背组合在一起,把玄关区、家政区安置 在采光较弱的北向进门处。

起居室
起居室作为房子中重要的活动空间,涵盖了大部分功能,围绕着承重柱体布置了餐厅岛台、沙发区、厨房、咖啡吧等功能区。

厨房
开放式厨房与其他功能区连结得更加紧密,让做饭变得没那么孤立、无趣,希望在厨房中与沙发区、咖啡吧之间产生更多生活上的可能性。

吧台结合承重墙体形成空间中岛,形成客厅、餐厅、厨房和阳台的大洄游动线,美食、美酒和咖啡围绕它展开。

中岛台+餐桌组合的设计,让小空间的设计更加实用。
三五好友相聚,在开敞的起居室内,咖啡、备餐、畅饮连贯展开,身处其中感受着每种生活状态的连结与共存。
阳台
作为全家中阳光最好、视野最开阔的空间,将休憩榻和咖啡吧落在这里,休憩榻可以躺在阳光里读读书、发发呆小憩一会。

同时可临时作为一间卧室使用,咖啡吧旁的桌椅可以在景观中品尝咖啡、闲聊久坐。
家政区

卧室
卧室是屋主私人的休息空间,同时也是睡前的阅读空间,通过入墙移门与起居空间分隔开。

靠窗设置了同窗台相高的书柜, 窗户内安装百叶帘保证私密和阻隔阳光。
对面设置衣柜用来收纳随身衣物,衣柜上方吊顶来隐藏中央空调室内机,吊灯和绿植由屋主亲自挑选,是房屋个性的体现。
想了解这个项目,请联系我!
我想加盟,请将项目的资料发给我。
请问我所在地区有加盟商了吗?
想了解此项目的加盟流程,请联系我!
请问加盟此项目需投资多少钱?
版权与免责声明:
凡未注明稿件来源的内容均为转稿或由企业用户注册发布,本网转载出于传递更多信息的目的,如转稿涉及版权问题,请作者联系我们处理。我们对页面中展示内容的真实性、准确性和合法性均不承担任何法律责任。
如内容信息对您产生影响,请及时联系我们修改或删除。
上一篇:顺心整木家居
15811192007

今天已经有 230 人获取加盟资料
激发新活力,释放新动能,大咖齐聚,闪耀门展-2023中国国际门业展览会(北京门展),中国木门网、中居联高端访谈栏目专访鑫雅迪负离子木门营销总监刘志峰。
激发新活力,释放新动能,大咖齐聚,闪耀门展-2023中国国际门业展览会(北京门展),中国木门网、中居联高端访谈栏目专访洋诚智慧木门总经理王智。
激发新活力,释放新动能,大咖齐聚,闪耀门展-2023中国国际门业展览会(北京门展),中国木门网、中居联高端访谈栏目专访戴克爱家高定刘杰。
激发新活力,释放新动能,大咖齐聚,闪耀门展-2023中国国际门业展览会(北京门展),中国木门网、中居联高端访谈栏目专访品桥木门总经理隗治洪
激发新活力,释放新动能,大咖齐聚,闪耀门展-2023中国国际门业展览会(北京门展),中国木门网、中居联高端访谈栏目专访兄弟木门营销总经理鲍壮。
2024门业及定制家居品牌峰会暨中居联杯·2023年度木门及门墙柜整装十大品牌表彰盛典圆满落幕
最近,陆陆续续有几位企业主来信来电,对当今国际局势深感焦虑,分别约我深度探讨一下当下局势及其可能的演化方向与进程,以便看清楚未来的机会和风险,并给出一些建议,以便早做准备。
让加盟更诚信 让选择更放心
立即咨询做有权威的品牌